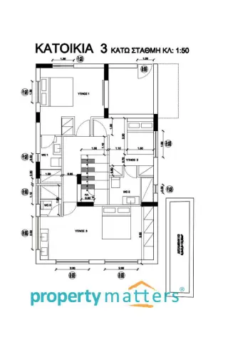
Μεζονέτα προς πώληση Κέα 130 τ.μ
Κέα, Νομός Κυκλάδων€ 650.000
- Εμβαδόν:130 τ.μ
- Οικόπεδο:1.000 τ.μ
- Δωμάτια:3
- Όροφος:Ισόγειο
- Επίπεδα:2
- Έτος Κατασκευής:2024
For Sale: Villa in Kea, Otzias, Mavro Discover this villa under construction, boasting two stories and 130 square meters of space, nestled within a 1,000 square meter independent area, forming part of a housing estate comprising four villas. This inviting villa comprises three bedrooms, each a master suite, an open-plan kitchen, and four bathrooms (including one WC). Amenities include parking, a safety door, storage space, air conditioning, autonomous heating, energy-efficient A+ rating, a private pool, barbecue facilities, and beautifully landscaped outdoor areas. Water supply and drainage tanks are already installed. Enjoy breathtaking panoramic views of the sea and surrounding landscape. Construction is underway with brick, and completion is expected by December 2024. Conveniently located, just 4 kilometers from the port of Korissia, 2 kilometers from Vourkari, and 1.5 kilometers from Otzias. This property is ideal for private residence or investment purposes.
- ΘέρμανσηAir-condition
- ΘέαΑπεριόριστη, Βουνό, Θάλασσα
- ΘέσηΔιαμπερές
- ΧαρακτηριστικάΕπιτρέπονται κατοικίδια, Φωτεινό
- Αποθήκη
- Βεράντα
- Κήπο
- Μπάνιo
- Πισίνα
- Σίτες
- Τζάκι
Είστε κτηματομεσίτης;
Δείτε πως μπορούμε να σας βοηθήσουμε να βελτιώσετε τον τρόπο διαχείρησης του γραφείου σας.Κατάλαβα









