Μεζονέτα προς πώληση Βούλα 155 τ.μ
Βούλα, Ανατολική Αττική€ 1.100.000
- Εμβαδόν:155 τ.μ
- Δωμάτια:2
- Όροφος:Ισόγειο
- Επίπεδα:3
- Έτος Κατασκευής:2025
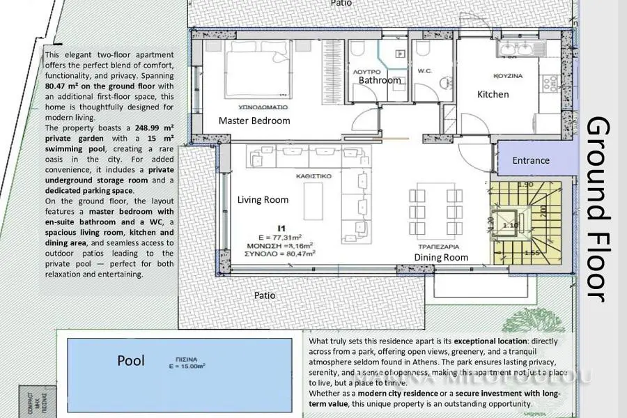
ΒΟΥΛΑ, Καλυμνιώτικα, κοντά στην Λ.Καλύμνου και απέναντι από πάρκο, σε κτίριο υπό ανέγερση, Μεζονέτα Ισογείου - 1ου - Υπογείου, συνολικά 155 τμ, με ιδιωτικό κήπο και πισίνα. -Ισόγειο, 80 τμ, ο χώρος υποδοχής, τραπεζαρία, χωριστή κουζίνα, 1 master υ/δ, 1 wc, βεράντα-deck για την πισίνα (15 τμ) και κήπος 249 τμ. - 1ος όροφος (loft, 45 τμ), 1 master υ/δ με walk-in closet και έξοδο σε βεράντα. - Υπόγειο, 30 τμ ενιαίος χώρος palyroom / αποθήκη με φυσικό φωτισμό από cour-anglaise. Αποτελεί μέρος κτιρίου ενεργειακής κλάσης Α+ με συνολικά 6 ιδιοκτησίες. Διαθέτει δρύινα δάπεδα, κλιματισμό (fan-coil), ενδοδαπέδια, συναγερμό, σύστημα πυρανίχνευσης, ηλιακά panel, led φωτισμούς, αλουμίνια θερμοδιακοπής και διπλά τζάμια, τεχνολογία Smart Home και 2 θέσεις στάθμευσης. Τιμή ζώνης 2400€. Βρίσκεται σε απόσταση 1,5 χλμ από την πλατεία της Βούλας και από την Β' πλαζ Βούλας που αναπλάθεται σε χώρο άθλησης και αναψυχής και 19 χλμ από το αεροδρόμιο. Εκτιμώμενη παράδοση Οκτώβριος του έτους 2027.
- Θέση στάθμευσηςΚλειστή
- ΘέρμανσηAir-condition
- ΚατάστασηΥπο κατασκευή
- Τύπος δαπέδωνΞύλο
- ΠροσανατολισμόςΔυτικός, Νότιος
- ΘέσηΔιαμπερές
- Διπλά τζάμια
- Ηλιακό θερμοσίφωνα
- Κήπο
- Μπάνιo
- Πισίνα
- Συναγερμό
Είστε κτηματομεσίτης;
Δείτε πως μπορούμε να σας βοηθήσουμε να βελτιώσετε τον τρόπο διαχείρησης του γραφείου σας.Κατάλαβα









